Restaurantkonzept für einen Luxus Fine Dining Bereich im Rahmen des Vier Sterne Superior Hotels im amerikanischen Kolonialstil in einem Themenpark.
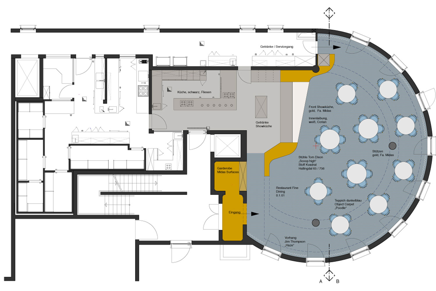
Der Fine Dining Bereich soll sich von dem übrigen Hotel im amerikanischen Kolonialstil bewusst absetzen. Die Lage im Sockelgeschoss eines neugeplanten Leuchturmgebäudes und die den atlantischen Ozean symbolisierende kleine vorgelagerte Seeanlage führte zur Entwicklung des Themas „Unterwasserlandschaft“. Dieses ist einerseits den im Hotelentwurf einbeschriebenen Themen „Ozean“ und „Überfahrt“ verwandt, eröffnet andererseits jedoch viele Möglichkeiten für eine völlig unterschiedliche Formensprache.
Eine dreifach gekrümmte Deckenuntersicht mit integrierter flächig dimmbarer LED Lichttechnik bietet Assoziationen an Korallenriffe aber auch Fischschwärme. Die Umfassungsflächen in dunklem blau nehmen den Gast mit auf eine Reise in die Tiefe des Meeres. Der messingverkleidete Showkitchenbereich weckt Erinnerungen an unterseeisch verborgene Schätze.
Tiefe / kostbar/ Glanz / dunkelblau / elegant / wogend / luxuriös/ Messing / Gold / Struktur / Samt/ edel /gediegen / hochwertig / mondän / Licht und Schatten
AUFTRAGGEBER/KUNDE
Europapark Rust
Rudolf Neumeier GmbH & Co KG
LAGE
Europapark Rust
UMFANG
Lph 1 und 3
BAUKOSTEN
1.000.000,00 €
FLÄCHE
250 m²
PLANUNGSZEIT
2011 - 2012
PROJEKTBETEILIGTE
Achim Dannenberg, Uta Bahn, Bruno Franchi
Hotel

